Ваш город:
Котлас
Ваш город Котлас?
Да Выбрать другой
Заказать звонок
Фильтр

Планетарно-червячные редукторы ПЧ-200, ПЧ-250, ПЧ-320, ПЧ-400

Описание

iN n1 n2 пч-200 пч-250 пч-320 пч-400
Р1 Т2 η Р1 Т2 η Р1 Т2 η Р1 Т2 η
мин-1 кВт Н.м кВт Н.м кВт Н.м кВт Н.м
40 (5х8) 1500 37,5 13,2 2833 0,84 22,8 4933 0,85 40,2 9000 0,88 68,4 15333 0,88
1000 25 10,4 3345 0,84 17,9 5733 0,84 30,4 10111 0,87 51,5 17111 0,87
750 18,7 8,5 3600 0,83 14,5 6133 0,83 24,1 10667 0,87 41,1 18000 0,86
50 (6,3х8) 1500 30 11,7 3150 0,84 20,1 5429 0,84 35,1 9689 0,86 58,9 16435 0,87
1000 20 8,9 3554 0,83 15,2 6061 0,83 25,8 10567 0,85 43,1 17840 0,86
750 15 7,8 4082 0,82 13,1 6891 0,82 22,3 12045 0,84 37,4 20411 0,85
63 (8х8) 1500 23,8 10,1 3406 0,83 17,2 5829 0,83 29,6 10245 0,85 49,4 17325 0,86
1000 15,9 8 3989 0,82 13,5 6745 0,82 22,9 11778 0,84 38,4 19945 0,85
750 11,9 6,8 4471 0,81 11,4 7502 0,81 19,5 13155 0,83 33,1 22355 0,83
80 (5х16) 1500 18,8 7,3 3033 0,82 12,6 5333 0,83 22,6 9667 0,84 40 17333 0,85
1000 12,5 5,8 3589 0,81 9,9 6222 0,82 17,4 11000 0,83 30,1 19333 0,84
750 9,38 4,8 3867 0,8 8,1 6667 0,81 14 11667 0,82 24,1 20333 0,83
100 (6,3х16) 1500 15 6,4 3378 0,82 11,2 5885 0,82 19,7 10493 0,83 34,5 18573 0,84
1000 10 4,9 3817 0,81 8,3 6587 0,82 14,6 11547 0,82 25,2 20153 0,83
750 7,5 4,4 4555 0,8 7,4 7700 0,81 12,8 13274 0,81 22,4 23548 0,82
125 (8х16) 1500 12 5,5 3655 0,81 9,5 6329 0,82 16,7 11160 0,82 28,9 19573 0,83
1000 8 4,6 4422 0,79 7,6 7500 0,81 13,1 12963 0,81 22,9 22926 0,82
750 6 4 5111 0,78 6,6 8533 0,79 11,2 14571 0,8 19,8 26141 0,81
160 (5х31,5) 1500 9,4 4 3167 0,79 6,8 5553 0,81 12,3 10000 0,81 21,9 18000 0,82
1000 6,3 3,3 3722 0,76 5,4 6511 0,8 9,6 11555 0,8 16,4 20000 0,81
750 4,7 2,7 4000 0,73 4,5 7000 0,77 7,8 12333 0,79 13,1 21000 0,8
200 (6,3х31,5) 1500 7,5 3,6 3511 0,78 6,1 6139 0,8 10,9 10965 0,8 18,8 19240 0,81
1000 5 2,9 3950 0,73 4,7 6912 0,77 8,3 12193 0,78 13,7 20820 0,8
750 3,8 2,7 4758 0,7 4,4 8148 0,73 7,2 14055 0,77 12,1 24215 0,79
250 (8х31,5) 1500 6 3,6 3789 0,66 6,2 6629 0,67 10,8 11742 0,68 18,3 20240 0,69
1000 4 3 4611 0,65 5 7926 0,66 8,5 13722 0,67 14,4 23593 0,68
750 3 2,7 5369 0,63 4,4 9074 0,64 7,4 15445 0,65 12,7 26807 0,66

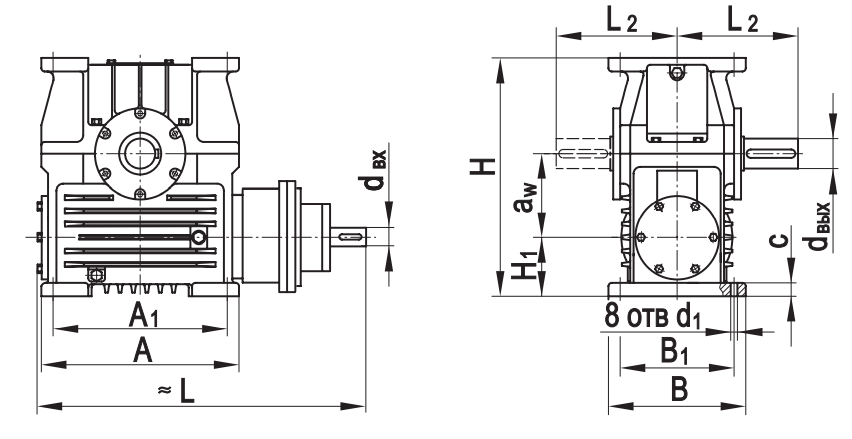
Габаритные размеры редуктора на лапах

 

Типоразмер аW А А1 В В1 L* L1max L2*Н Н 1 сd d вх dвых
ПЧ­-200 200 475 420 330 275 883
939
1161
1165
340 595 160 32 24 45 80
ПЧ­-250 250 590 520 410 340 938
1163
1390
1480
365 710 175 40 28 55 90
ПЧ­-320 320 695 560 485 405 1145
1385
1665
2095
460 890 215 65 34 70 120
ПЧ­-400 400 940 840 600 500 1374
1582
1950
1888
580 1100 260 70 39 90 160

* Размеры приведены без учёта длины резьбового конца вала исполнения К2. 

 

Габаритные размеры редуктора на фланце

Типоразмер аW D D1 D2 H L* L1max L2* L7 L8 c1 c2 d1 dвх dвых n
ПЧФ­-200 200 530 410 470 595 883
939
1044
1100
340 205 380 30 5 24 45 80 8
ПЧФ­-250 250 660 515 585 710 938
1163
1572
1632
365 255 431 35 6 28 55 90 8
ПЧФ­-320 320 840 660 750 890 1145
1382
1665
2025
460 325 541 40 6 34 70 120 8
ПЧФ­-400 400 1050 820 940 1100 1374
1582
1950
1888
580 405 711 45 6 39 90 160 8

* Размеры приведены без учёта длины резьбового конца вала исполнения К2. 

Варианты сборки

Варианты расположения червячных передач

 

1. Червячный вал под колесом;
2. Червячный вал над колесом;
3. 4. Вал червячного колеса вертикальный;
5. 6. Червячный вал вертикальный.

Назад
Выбор города